幕墻
- 普通幕墻
- JM110A半隱框(隱框)幕墻
- JMCW100/120系列隱框幕墻
- JMCW120/145/165系列幕墻
- JMCW130系列明框幕墻
- MQ130系列隱框幕墻
- MQ135系列明框幕墻
- JM138明(隱)框幕墻
- JM140A明框幕墻
- JM140C系列橫明豎隱幕墻
- JMCW140/150/190系列隱框幕墻
- JMCW140/170系列明框幕墻
- JMCW145系列隱框幕墻
- MQ140系列幕墻
- Y145系列隱框幕墻
- JMCW150系列橫明豎隱幕墻
- JM150B隱框幕墻
- JM150C明框幕墻
- JM155明框幕墻
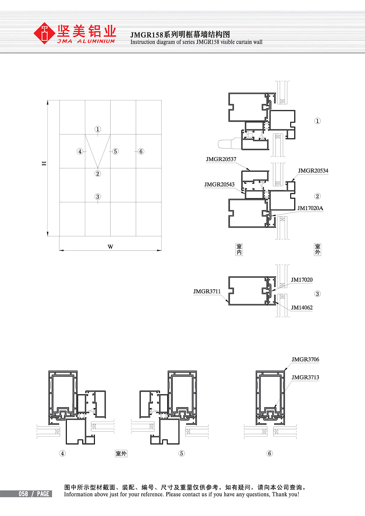
- JMGR158系列明框幕墻
- JM160B隱框幕墻
- MQ160系列豎明橫隱幕墻
- MQ160A系列明框幕墻
- JMCW160系列明(隱)框幕墻
- MQ165系列隱框幕墻
- JM170系列明框幕墻
- JM170系列隱框幕墻
- MQ170B系列豎明橫隱幕墻
- QX175隱框幕墻
- MQ180A明框幕墻
- JMCW180/200系列隱框幕墻
- 輕型幕墻
- 隔熱幕墻

粵公網(wǎng)安備44060502000388號(hào)
