隔熱
- 穿條平開系列
- GR46系列隔熱平開門
- GR50B系列隔熱平開窗
- GR50C-6系列隔熱內開窗
- GR52-V系列隔熱平開窗
- GR52-VI系列隔熱平開門
- GRU55系列隔熱推拉上懸、推拉折疊門
- GR55系列隔熱推拉折疊門
- GRE55-IV系列隔熱內開內倒窗
- GR55B系列隔熱平開窗
- GR55-I系列隔熱外開窗
- GR55-II系列隔熱外開窗
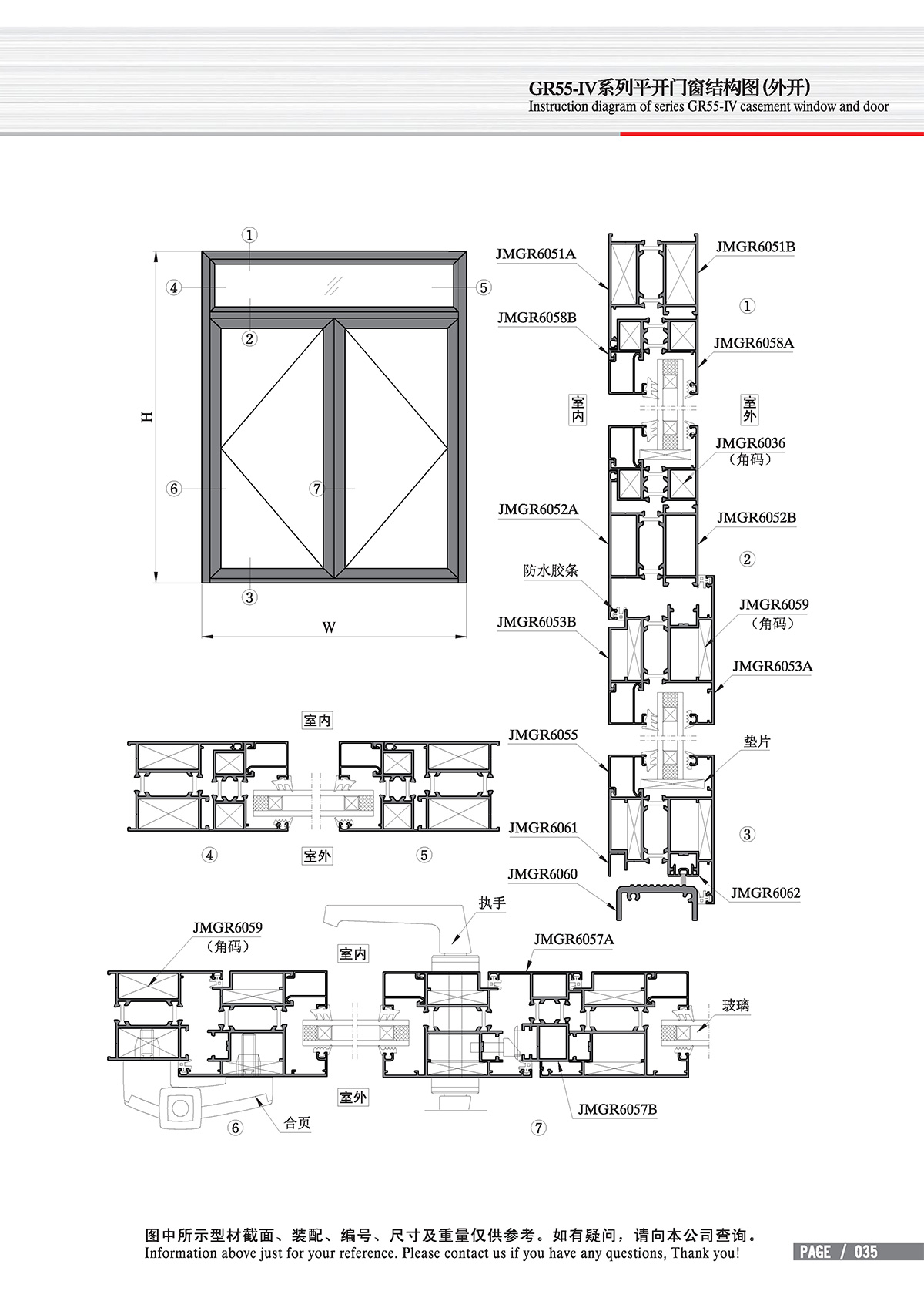
- GR55-IV 系列隔熱平開門窗
- GR55-V系列隔熱內開對開門
- GR55-VI系列隔熱外開對開門
- GR55-VII系列隔熱平開窗
- GRQ55A系列隔熱平開門窗
- GR60A系列隔熱內開內倒/外開窗
- GR60B系列隔熱內開內倒/外開窗
- GR60C系列隔熱平開門
- GR63-7系列隔熱地彈門
- GR65系列隔熱地彈門
- GR65A-7系列隔熱內開窗
- GR65B-8系列隔熱平開門
- GR65B-9系列隔熱平開窗
- GR65系列隔熱平開門窗
- GR70系列隔熱平開窗
- GR70D系列隔熱平開窗
- GR70E5系列隔熱平開窗
- GR70E6系列隔熱平開門
- GR70系列隔熱平開門窗
- GR70A系列隔熱平開門窗
- GR70A-4系列隔熱平開窗
- GR75系列隔熱平開門窗
- GR80系列隔熱外平開窗
- GR90A-1系列隔熱折疊門
- 新標準穿條系列
- 穿條推拉系列
- 注膠推拉系列
- 注膠平開系列

粵公網(wǎng)安備44060502000388號
